
塑料顆粒種類介紹
塑料顆粒指顆粒狀的塑料,一般分為200多種,細分達幾千種。常見的塑料顆粒有通用塑料,工程塑料,特種塑料。通用塑料:聚丙烯、聚乙烯、聚氯乙烯、 聚苯乙烯、聚酯、聚氨酯等。工程塑料:尼龍、聚四氟、聚甲醛、聚碳有機硅等。特種塑料:熱固性塑料、功能高分子塑料,比如人工腎。

塑料顆粒直線篩的工作原理:
塑料顆粒振動篩為雙振動電機驅動。當兩臺振動電機做同步、反向旋轉時,其偏心塊所產生的激振力在平行于電機軸線的方向相互抵消,在垂直于電機軸的方向疊為一合力,因此塑料顆粒振動篩的運動軌跡為一直線。兩電機軸相對篩面在垂直方向有一傾角,在激振力和物料自重力的合力作用下,物料在篩面上被拋起跳躍或向前作直線運動,從而達到對物料進行篩選和分級的目的。適用于粒度在0.074—5mm,含水量小于7%,無粘性的各種干式粉狀或顆粒狀物料的篩分。
塑料顆粒直線篩結構說明:
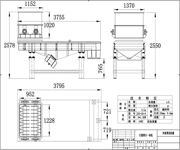
本篩機主要由篩箱、篩框、篩網、振動電機、電機臺座、減振彈簧、支架等組成。

1、篩箱:由數種厚度不同的鋼板焊制而成,具有一定的強度和剛度,是篩機的主要組成部分。
2、篩框:由松木或變形量較小的木材制成,主要用來保持篩網平整,達到正常篩分。
3、篩網:有低碳鋼、黃銅、青銅、不銹鋼絲等數種篩網。
直線振動篩從篩箱,篩框,支架,篩網,篩框,振動電機,電機座等結構介紹
4、振動電機(使用與維修方法詳見振動電機使用說明書)。
5、電機臺座:安裝振動電機,使用前連接螺釘必須擰緊,特別是新篩機試用前三天、必須反復緊固,以免松動造成事故。
6、減振彈簧:阻止振動傳給地面,同時支持篩箱的全部重量,安裝時,彈簧必須垂直與地面。
7、支架:由四個支柱和兩個槽鋼組成,支持著篩箱,安裝時支柱必須垂直與地面,兩支柱下面的槽鋼應相互平行。
塑料顆粒打散篩分一體機外形:
塑料顆粒直線篩安裝調試與使用:
該設備應固定在專用地基上,由預埋螺栓固定。如不打專用地基,應在工作臺與設備機座之間敷設防振橡膠板,在使用前必須給設備配置安全可靠的接地保護線.。
注意:設備安裝到位后,開機前必須將運輸時用來固定篩體和機座的裝置拆掉。
新篩機安裝好以后,應按以下要求檢查:
1、檢查振動電機繞組對地的絕緣電阻,若<20MΩ必須烘干后方能使用。
2、篩體和機座上、下彈簧座圈上,彈簧應完全垂直嵌入彈簧座圈,以保證篩體平衡,篩機的振動部分切勿與機外其它物體有硬性連接或接觸。
3、閉合電源開關,確認振動電機同步反向旋轉,進行10-20分鐘空運轉,設備在運行時如有異常聲音,應迅速關機進行檢查處理。設備運轉正常后,可將少量需篩分的物料通過進料口設入篩機內,確認物料向出料口方向行進,然后逐漸增加到所需和所能承受的給料量。
振動篩廠家家友情提示:請通過正規渠道購買振動篩配件,以保障您的合法權益!振動篩廠家請選河南奧創機械:http://www.maranton.com/zxky/818.html 24小時服務熱線:18937310551
物料直線運行方形篩專家-奧創機械 網站備案:豫ICP備16037295號-13